Hos Alecsander Delfs er hjerte og dygtighed drivkraften bag hvert eneste møde. Både når det gælder mennesker og boliger. At sælge og søge nyt hjem er en rejse fyldt med følelser, fortællinger og personlige fornemmelser. Hos os er det en bærende filosofi, at hver enkelt kunde skal føle sig tryg hele vejen, gennem en opmærksom, nysgerrig og åben dialog.
ET LIV PÅ TOPPEN MED UDSYN OG MASSER AF PLADS
Vindmøller placeres altid højest muligt i landskabet, og netop på en af nabogrundene til Møllevænget 10A lå i sin tid en vindmølle, der forsynede Helsingørs bagere med mel. Her, på denne bakketop, kan man ikke undgå at blive høj af udsigten – til Kronborg, Domkirken, Helsingborg og færgerne hen over Øresund for nu bare at nævne de største. Hertil kommer masser af smukke røde tage i middelalderbyen, grønne træer, skove og blå himmel – eller skiftende skyformationer, 360 grader rundt. Der er ikke noget, der skygger for solen! Og vent så bare, til I ser det hele fra husets 1.sal!
Ikke uden grund anser mange området, sammen med Strandvejen, for at være byens ypperste med kun 5 minutters gåtur til den gamle by.
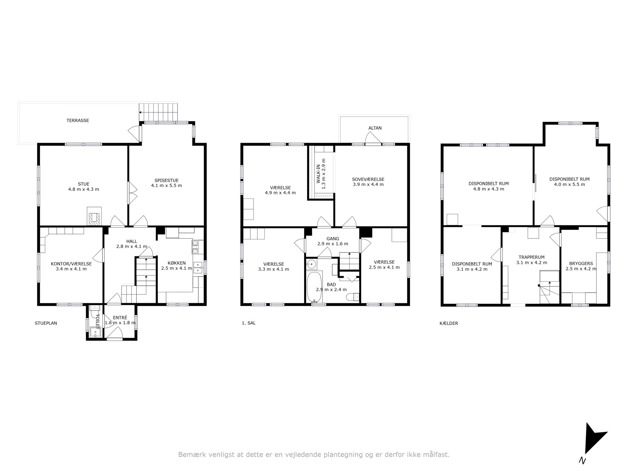
I kommer ikke til at savne plads, og faktisk er der nok at dele ud af til 2 familier med stue og 1.sal uden spildplads til skrå vægge. Der er tilmed en fuld, knastør kælder, der åbner op for et hav af muligheder som fx bordtennisrum, værksted, teenager-afdeling og gæsteværelse – altså udover det eksisterende bryggers og trapperummet, der fx kan være viktualielager for en stor og sulten familie.
Der er også masser af plads i stueplanet med et velindrettet køkken, der har adgang til terrassen og haven via spisestuen, samt yderligere 2 store rum, det ene med brændeovn, der nu om dage ofte er hyggeligere at kigge på end et tv.
Huset blev i sin tid opført og beboet af en af byens fremmeste tømrermestre, som også har bygget flere af nabohusene, hvilket bl.a. kan ses af markante træudskæringer, der kendetegnede mesteren.
En senere beboer i huset var stukkatør, der har renoveret de oprindelige stukke og med mesterlig hånd tilføjet nye i samme stil. Smukke stukke og høje paneler kan altså noget!
Haven er velanlagt med mange gavmilde vækster: æble, blomme, hindbær, ribs og solbær, og der er med tænksom hånd anlagt køkkenhave i niveauer/terrasser i et hyggeligt område, hvor haven skråner let.
Her, højt hævet over landskabet og byen er udsigten til et godt liv indenfor rækkevidde. Vejen er blind, og beboerne i området har øje for et godt naboskab med hjælpsomhed, gode snakke og sammenkomster om stort og småt. Man passer på sine hinandens børn og huse, og er der overskud af tomater i drivhuset, er det rart med velmenende nærboer, der måske kvitterer med et par agurker. Lyder det spiseligt for jer?
Adresse
Møllevænget 10A
3000 Helsingør