Hos Alecsander Delfs er hjerte og dygtighed drivkraften bag hvert eneste møde. Både når det gælder mennesker og boliger. At sælge og søge nyt hjem er en rejse fyldt med følelser, fortællinger og personlige fornemmelser. Hos os er det en bærende filosofi, at hver enkelt kunde skal føle sig tryg hele vejen, gennem en opmærksom, nysgerrig og åben dialog.
Dit eget byhus midt på Østerbro – med tagterrasse og egen indgang
Her får du noget, man næsten ikke tror findes midt på Østerbro: en ejerlejlighed, der føles som dit helt eget byhus.
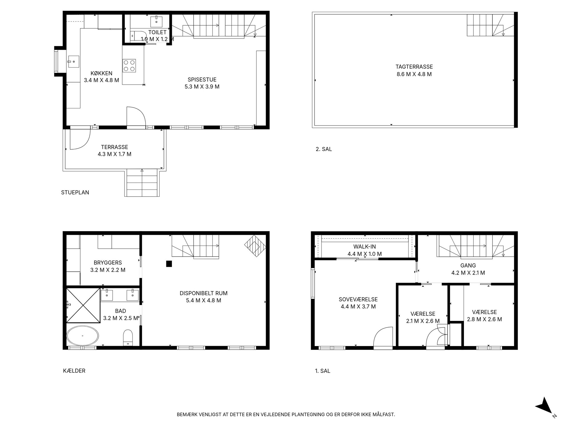
På Nordre Frihavnsgade 26A gemmer der sig et sjældent fund – en bolig i flere plan, med egen indgang, privat terrassemiljø og en stor, solrig tagterrasse øverst oppe, hvor byens tage danner kulisse for lange sommeraftener, middagsselskaber og stille morgenkaffe.
Boligen er en del af en veldrevet ejerforening, men fungerer i praksis som et selvstændigt enderækkehus. Her er man lidt for sig selv – midt i byen. Indenfor mødes du af lyse, åbne rum og en planløsning som er gennemtænkt. Køkken og spisestue flyder sammen i et indbydende leverum, hvor trappen elegant binder etagerne sammen.
Ovenpå finder du soveafdeling med gode værelser og walk-in-closet, og nederst en højloftet underetage med plads til både hobby, gæster, hjemmekontor eller teenageafdeling. Materialerne er lyse og rolige, stemningen afslappet. Her er masser af plads – og masser af muligheder. Og så er der udelivet: en fantastisk tagterrasse, der føles som din egen private oase over byen. Heroppe glemmer man hurtigt, at man bor midt på Østerbro.
Beliggenheden er lige så god, som den lyder. Nordre Frihavnsgade byder på caféer, specialbutikker og byliv, og samtidig er der kort til både grønne områder, vandet og resten af byen. En sjælden kombination af byhusfornemmelse, ejerlejlighedens bekvemmelighed og uderum i flere niveauer.
En bolig, der skal opleves.
Adresse
Nordre Frihavnsgade 26A
2100 København Ø