Hos Alecsander Delfs er hjerte og dygtighed drivkraften bag hvert eneste møde. Både når det gælder mennesker og boliger. At sælge og søge nyt hjem er en rejse fyldt med følelser, fortællinger og personlige fornemmelser. Hos os er det en bærende filosofi, at hver enkelt kunde skal føle sig tryg hele vejen, gennem en opmærksom, nysgerrig og åben dialog.
Solsiden af Eckersberggade, hvor historie og nutid mødes
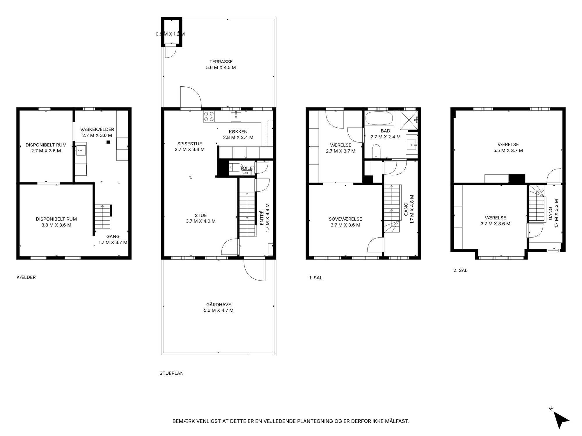
På solsiden af Eckersberggade, midt i Kartoffelrækkerne, ligger dette klassiske byggeforeningshus, som i efteråret 2025 har gennemgået en omfattende og kompromisløs restaurering. Her er alt gentænkt med nænsom hånd, ikke for at ændre husets sjæl, men for at forfine og fremhæve den.
Nye vinduer, nye gulve, et smukt udført snedkerkøkken samt nyt badeværelse og gæstetoilet danner rammen om en bolig, hvor hver detalje er udvalgt med respekt for arkitekturen og med materialer, der taler stille, men overbevisende. Resultatet er en sjælden balance mellem det historiske og det nutidige, en naturlig og underspillet elegance, der mærkes i hele huset.
Boligen udfolder sig harmonisk fra etage til etage. Rummene hænger sammen med en rolig rytme, proportionerne føles rigtige, og atmosfæren er varm, afstemt og indbydende. Her er en særlig følelse af kvalitet og varighed, et hjem, der falder naturligt på plads, fra det øjeblik man træder indenfor.
Kartoffelrækkerne er noget helt særligt. Mere end blot smukke gader og ikoniske byggeforeningshuse er det et levende og sjældent naboskab midt i byen. Her hilser man på hinanden ved legestykket midt på vejen, børn finder legekammerater fra første dag, og året leves sammen gennem vejfester, Halloween og fastelavn. En atmosfære af nærvær og fællesskab, som sjældent findes så centralt i København.
Eckersberggade 8 er ikke blot restaureret.
Det er genopstået med respekt, kvalitet og en sjælden sans for helhed.
Adresse
Eckersbergsgade 8
2100 København Ø