181 etagemeter til hygge og trivsel i ikoniske Hellerup og Dyssegårdskvarteret
Man skal bo godt for at have det godt, uanset om man er single, et par eller en familie: Trivsel er som bekendt godt for smilebåndet! Her på Baldrianvej 5 har I alle muligheder for at indrette jer og udvikle det, som I står for …
Hellerup er ikke for ingenting lovprist af sine beboere, her i et af Danmarks mest ikoniske postnumre. Der er gode og attraktive skoler at plukke mellem som fx Dyssegårdsskolen, Kildegårds Privatskole, og ligeledes mindst 4 gymnasier indenfor cykelafstand. Og der er gode indkøbsmuligheder, både lige om hjørnet, på Gentoftegade, på Søborg Hovedgade og i Hellerup downtown, når der for alvor skal shoppes eller hygges på cafe eller restaurant. Her breder hele øresundskysten sig ud med bl.a. Hellerup havn og Hellerup strand.
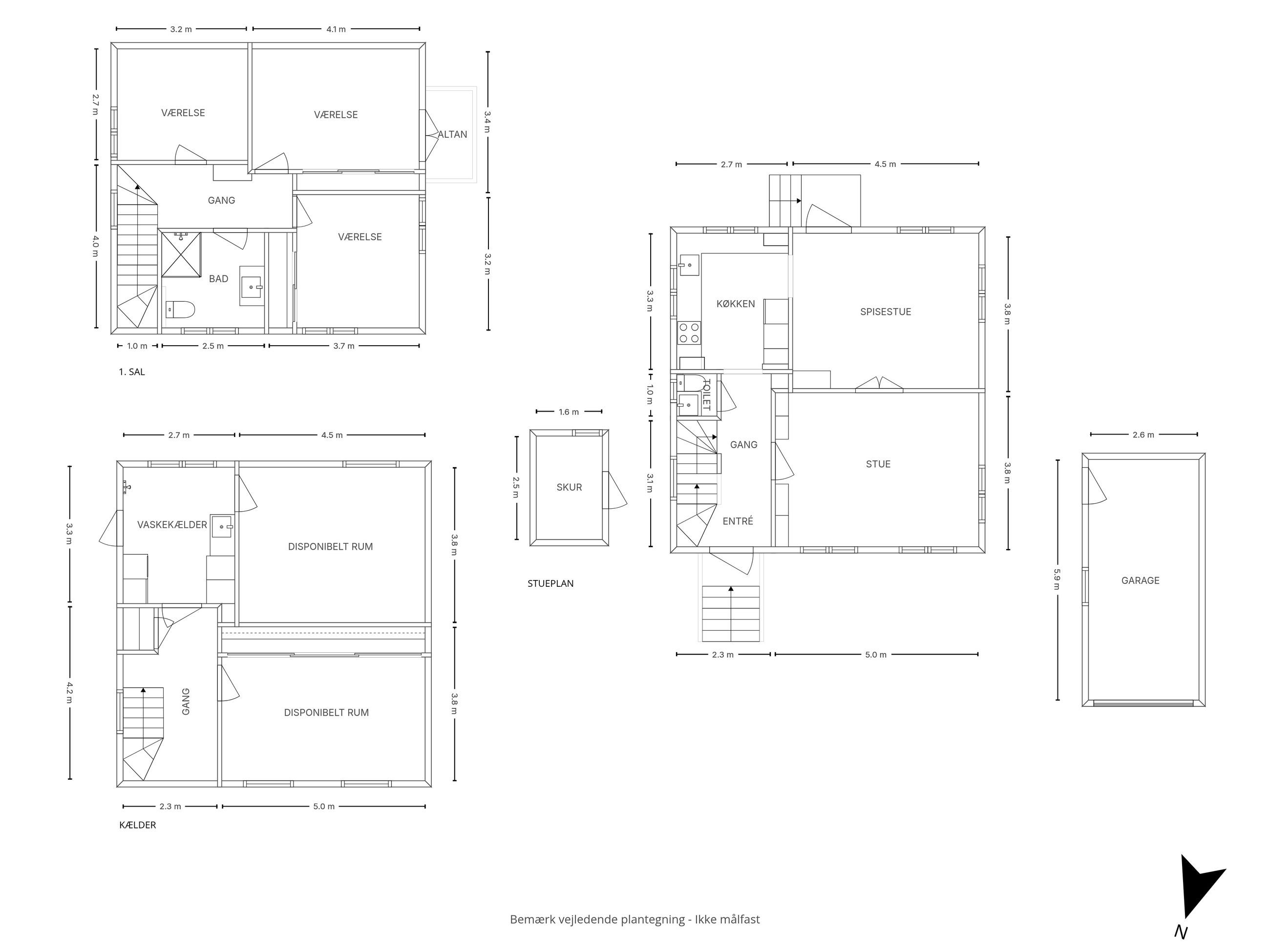
Men hvad flytter I så ind i? Lad os starte fra toppen af de 181 etagemeter muligheder, lige under det røde tegltag af betryggende ny dato. Heroppe har I 3 gode værelser i form af et stort forældresoveværelse og 2 børneværelser (læs videre: teenagerne får en særlig overraskelse i kælderen).
Stueetagen er det samlende midtpunkt for en familie i trivsel, der kan lide at være sammen om madlavning (med nyere hvidevarer overalt), venner og familie, lektielæsning og -hjælp, sunde snakke om bordet, for ja, der er masser af emner i disse tider.
En velanlagt og veloplagt terrasse til varme søndagsboller i den lune årstid og en hyggelig og rummelig have med plads til boldspil og et par givende æbletræer, der forsyner frugtskålen og fryseren.
Den højbenede kælder har gulvvarme, er 2,20 meter høj og knastør. Og der er 2 funktionelle disponible rum til opbevaring, hobbyrum eller til et par teenagere, der kan hygge i fred og invitere venner og skolekammerater til … nå ja, det kunne da også være lektielæsning og opgaveskrivning.
For enden af Baldrianvej finder I et omfattende grønt stisystem langs et lille vandløb, der forbinder Gentofte sø med Utterslev Mose-systemet. Her er sultne hejrer, påpasselige salamandre, frøer og småfisk. Stien er populær til en gå- eller løbetur med barnevognen, hunden eller begge dele. Glæd jer til at se, hvordan en bolig kan understøtte hverdagens trivsel og gøremål…
ADRESSE
Baldrianvej 5,
2900 Hellerup
ØKONOMI
Kontantpris | 9.795.000 kr. |
Udbetaling | 490.000 kr. |
Ejerudgift | 4.636 kr. |
EJENDOMSDATA
Boligareal | 118 m2 |
Ejendomstype | Villa, 1 fam. |
Grundareal | 463 m2 |
Værelser | 5 |
Byggeår | 1930 |
Energimærke | C |
Hos Alecsander Delfs er hjerte og dygtighed drivkraften bag hvert eneste møde. Både når det gælder mennesker og boliger. At sælge og søge nyt hjem er en rejse fyldt med følelser, fortællinger og personlige fornemmelser. Hos os er det en bærende filosofi, at hver enkelt kunde skal føle sig tryg hele vejen, gennem en opmærksom, nysgerrig og åben dialog.
KORT
Brian Pamperin
Salg og vurdering