Et arkitektonisk mesterværk med historie og hjerte
Der findes huse, der taler til fornuften – og så findes der dem, der taler direkte til hjertet. Denne klassiske rødstensvilla gør begge dele.
Bag den smukke facade med buede vinduer, tegltag og elegant indrammet hoveddør gemmer sig en bolig, hvor hver detalje bærer på historie, håndværk og varme. Taget blev udskiftet i 2012, og samtidig blev alle fuger mellem murstenene fornyet – et arbejde, der sikrer huset mange vedligeholdelsesfri år fremover. Det er et hjem, hvor du næsten hører trægulvene fortælle om generationer, der har levet, leget og grinet her – og hvor nutiden har givet det hele et blidt og tidløst løft.
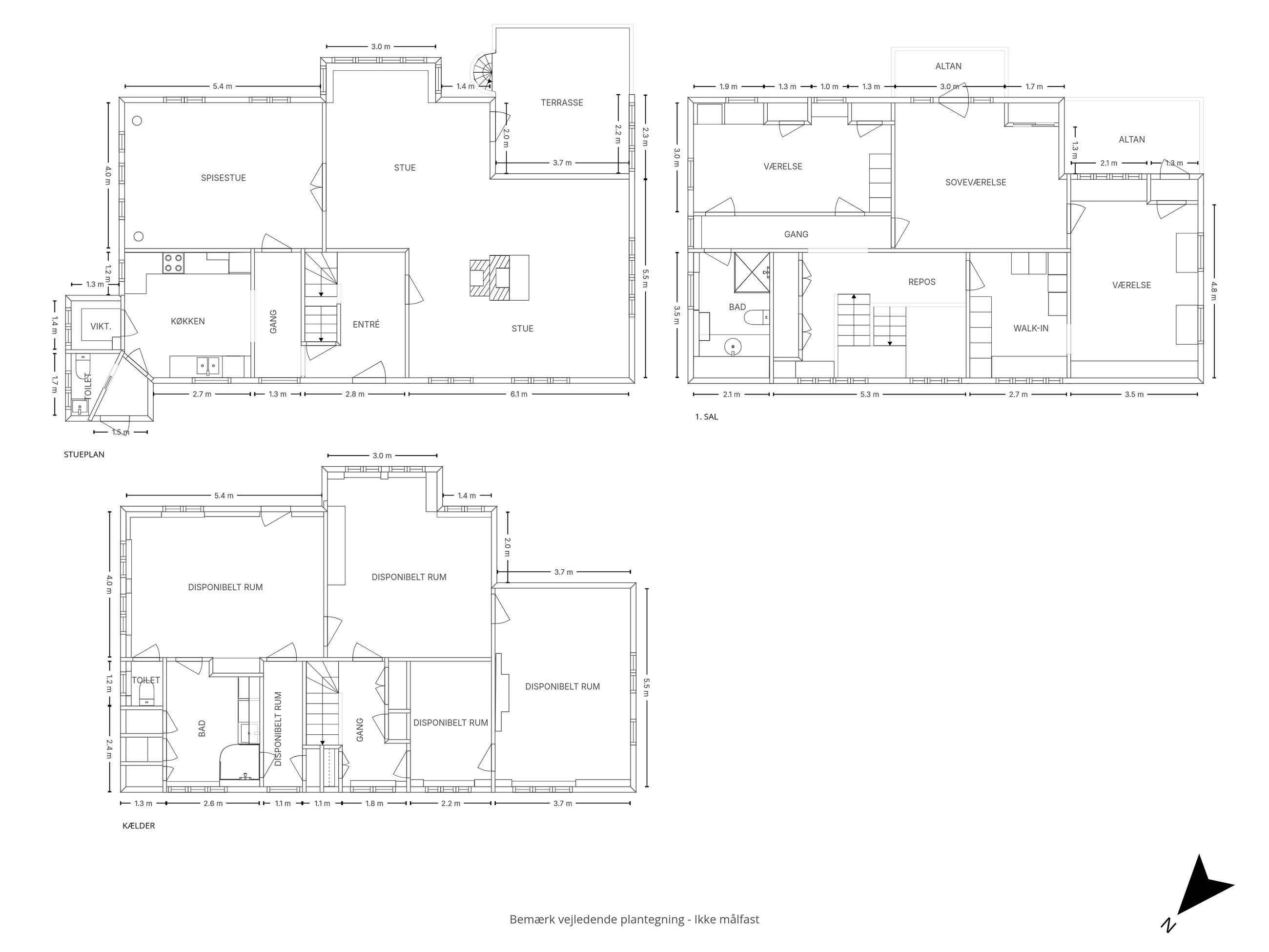
Indenfor mødes du af lyse, højloftede stuer med sprossede vinduer, stuk og smukke originale detaljer, der alt sammen spiller op til det bløde dagslys. Pejsen i stuen indbyder til langsomme aftener, mens de store, sammenhængende opholdsrum gør det oplagt at samle venner og familie til middage og samtaler, der varer til sent.
Villaen rummer 235 kvadratmeter bolig og yderligere 125 kvadratmeter højloftet, anvendelig kælder – fordelt på hele otte værelser, så her er plads til både hverdag og selskabsliv i stor skala. Huset ligger på en 1.125 m² stor grund med terrasse og grønne omgivelser, hvor børnene kan lege, og de voksne kan nyde roen omkring sig.
Her er kælet for alt det, man sjældent finder i nyere byggeri – den solide fornemmelse, proportionerne, charmen og de fine snedkerdetaljer, der giver sjæl og karakter. Samtidig er huset løbende vedligeholdt og opdateret, så det fremstår med en perfekt balance mellem klassisk og nutidigt.
Kort sagt: en villa med format, varme og nærvær – og en sjælden mulighed for at flytte ind i et hjem, der både føles stort og menneskeligt på én gang.
ADRESSE
Helsingørsvej 8,
3480 Fredensborg
ØKONOMI
Kontantpris | 11.995.000 kr. |
Udbetaling | 600.000 kr. |
Ejerudgift | 7.870 kr. |
EJENDOMSDATA
Boligareal | 235 m2 |
Ejendomstype | Villa, 1 fam. |
Grundareal | 1125 m2 |
Værelser | 7 |
Byggeår | 1908 |
Energimærke | E |
Hos Alecsander Delfs er hjerte og dygtighed drivkraften bag hvert eneste møde. Både når det gælder mennesker og boliger. At sælge og søge nyt hjem er en rejse fyldt med følelser, fortællinger og personlige fornemmelser. Hos os er det en bærende filosofi, at hver enkelt kunde skal føle sig tryg hele vejen, gennem en opmærksom, nysgerrig og åben dialog.
KORT
Alecsander Delfs
Indehaver